
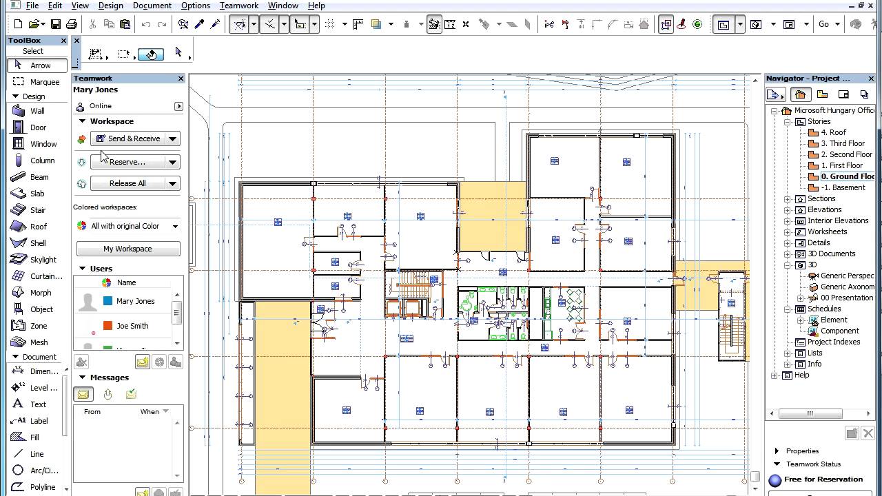
Setting Project Backup Creation Roles
PLN Project Backup files may only be created by Users who have joined the Project and who are using a Role that allows them to perform this step.
There is a new Access Right in the Role Settings page of the BIM Server Manager that controls whether a User will be able to create PLN backups from their ArchiCAD instance. Switch to the Roles page, select the Lead Architect Role and click the Settings button.
More information
http://www.graphisoft.com/products/ar...
http://www.graphisoft.com
Download ArchiCAD for free:
https://myarchicad.com/
Title image:
Vennesla Library & Cultural Center, Norway
Helen & Hard, www.hha.no
Photo ©Emile Ashley
Demo model building:
Microsoft Hungary Headquarters Office building
Lukacs & Vikar Architects
www.lukvik.hu
A new feature is available in ArchiCAD 16 when saving the selection as a GDL Object.
More information
http://www.graphisoft.com/products/ar...
http://www.graphisoft.com
Download ArchiCAD for free:
https://myarchicad.com/
Title image:
Vennesla Library & Cultural Center, Norway
Helen & Hard, www.hha.no
Photo ©Emile Ashley
Demo model building:
Microsoft Hungary Headquarters Office building
Lukacs & Vikar Architects
www.lukvik.hu
delta server canada ArchiCAD 16 - BIM Server - Setting Project Backup Creation Roles | |
1 Likes | 1 Dislikes |
1,305 views views | 71.5K followers |
Science & Technology | Upload TimePublished on 2 Jul 2012 |
Related keywords
delta server store,architecture 101 izle,trainingguides,delta server rack,building museum,backup battery,designer shoes,delta server,tutorials by hugo,training guides for new employees,bimserver plugins,training guides for managers,teamwork synonym,bimmer,graphisoft budapest,backup quarterback,bimserver center,graphisoft assistenza,architecture design,architectural salvage,bimini,bim server archicad,bim server login,graphisoft ita,archicad 16 to lumion bridge,cadence of hyrule,bim server not accessible,archicad 16 download,building a deck,architecture portfolio,architecture cv,architectural styles,building engines,building link,archicad 16 tutorial pdf,tutorialspoint python,archicad 22 уроки,bimserver tutorial,graphisoft youtube,architecture definition,archicad portable скачать,bimserver.center ar,bimmertech,designated survivor,teamwork meaning,tutorialspoint javascript,bimini top,teamwork essay,bim server center,archicad купить,bimmerpost,bim server manager,archicad требования,training guides templates,architecture wallpaper 4k,architecture news,graphisoft archicad 21 build 3009 + addons + cura (x64) – ita,teamwork makes the dream work,tutorialspoint spring,backup plan pln,delta.server4voice,cadillac,architectural record,bim server archicad 21,bim server tutorial,bing,bim server archicad 22,bim server 21 download,graphisoft student,graphisoft goodies,backup iphone to computer,building synonym,teamwork logo,archicad 16 32 bit,archicad 16 tutorial,design space,graphisoft download,training guides for runners,bimatoprost,archicad 16 library,cades cove,backup software,training guides weightlifting,cadillac cts v,building department,tutorials near me,deltaserver,bim server installation,architectural depot,teamwork in the workplace,training guides pdf,designer brands,graphisoft bimx,bimserver.centre,building materials,architectural design,backup running backs,design within reach,bimserver json query,bimonthly,graphisoft archiclub,delta server psu,training guides runescape,bim server cype,bimserver docker,bim server github,archicad 21 rus скачать торрентом,teamwork skills,archicad 18 скачать торрентом,training guides for the head start learning community,bimmer clinic,training guides,building a gaming pc,bimserver installation,archicad portable,architectural shingles,tutorialspoint html,backup power supply,bim server 20 download,cad to usd,buildings for sale,tutorialspoint reactjs,archicad 16 download 32 bit,archicad 22 требования,teamwork captcha,tutorialspoint python 3,training guides osrs,caddyshack cast,teamwork quotes,archicad 16 free download,archicad 16 requirements,building connected,architects near me,graphisoft italia,backup android phone,bimini road,bimserver database,architecture wallpaper,bimmercode,archicad 16 crack,architecture jobs,bimodal distribution,tutorialspoint spring boot,building supply,architecture tour chicago,teamwork activities,archicad 16 download 64 bit,building the browns,bimserver update,cadillac records,training guides for trainers,architecture quotes,pln backup,caduceus,designer handbags,backup and sync google,graphisoftware,tutorialspoint,tutorials dojo,delta server fans,archicad 16 system requirements,designing women,graphisoft myarchicad,architectural ceramics,teamwork and cooperation,architecture projects,graphisoft archicad,archicad-autocad,delta server power 550w,tutorialspoint c#,architecture font,caddyshack,tutorialspoint tableau,designated survivor 60 days,the backup plan,bim server download,architecture lego,architect salary,bimbo bakeries,architecture ne demek,bimmerworld,backup terry,architecture degree,delta server avaya,tutorials by a,backupify,backup apple watch,building a shed,designer bags,bimserver api,backup qb colts,designer belts,bimserver wiki,delta server store review,training guides for marathon,cadillac cts,http://graphisoft.com,archicad системные требования,teamwork bible verse,bimserver demo,cadillac escalade,building 7,bim 360,archicad уроки,bimobject,tutorialspoint java,bim server setup,tutorialspoint java compiler,architectural digest,building 429,maplestory training guide,designer backpacks,archicad 21,archicad 22,archicad 23,architecture,bimbo bread,tutorialspoint sql,archicad 19,archicad 22 системные требования,architecture magazine,building inspector,delta server fan,bim server 20,designated survivor season 2,architecture competition,tutorialspoint spark,designated survivor season 3 cast,teamwork vpn,designated survivor season 3,designated survivor season 4,cadence bank,backup iphone,delta servers,bim server cloud,teamwork captcha login,bimserver download,cadillac suv,archicad bim server,architecture schools,tutorialsystems,backup plan,bim server graphisoft,cadillac ranch,design essentials,bimini bahamas,bimbo meaning,architects band,archicad 16 скачать торрентом,archicad 16 download with crack,bimserver graphisoft,architecture tattoo,cadillac xts,bim server archicad 18 download,archicad 16 tutorial for beginners pdf,delta server smdr,bimble,teamwork examples,building a house,teamwork in tagalog,bimserver javascript api,workout training guides,teamwork games,designated survivor cast,bimserver github,archicad 22 скачать,cadence,delta server power,delta server toronto,designer shoe warehouse,graphisoft se italian branch office,backup quarterback for colts,architectural engineering,training guides running,architecture logo,archicad lumion,buildings for rent,design bundles,archicad bim server 22,tutorialsteacher,graphisoft archicad italia,architect of the capitol,architecture master programs in europe,delta server racks,graphisoft archicad 21,delta server store scarborough,cadillac xt4,cadre,teamwork definition,archicad 16 serial number,cadillac xt6,building blocks,cadillac xt5,design thinking,bimserver query,training guides examples,teamwork and collaboration,delta server store toronto,backup camera,training guides for half marathon,bim server api,backup and sync,backup withholding,archicad 16 kuyhaa,graphisoft mep,architecture sketch,delta server down,building games,backup sump pump,architecture office,architecture 101,delta server store canada,graphisoft id,archicad pln backup,backup generator,archicad models,architectural salvage near me,teamwork images,
Không có nhận xét nào:
Đăng nhận xét